T.A. Makelaardij biedt aan: Schelphoek 20 RCN de Schotsman te Kamperland, een volledig gemeubileerd chalet (bj. 2002) met leuke tuin welke is omgeven door groen en gelegen op een rustige en beschutte plek op recreatiepark RCN De Schotsman. U kunt tevens gebruik maken van de onlangs vernieuwde parkfaciliteiten zoals verwarmd binnen- en buitenzwembad, tennisbaan, fitnessruimte, supermarkt, restaurant, snackbar, surf- en zeilschool en vele andere recreatiemogelijkheden in de buurt!

Indeling:
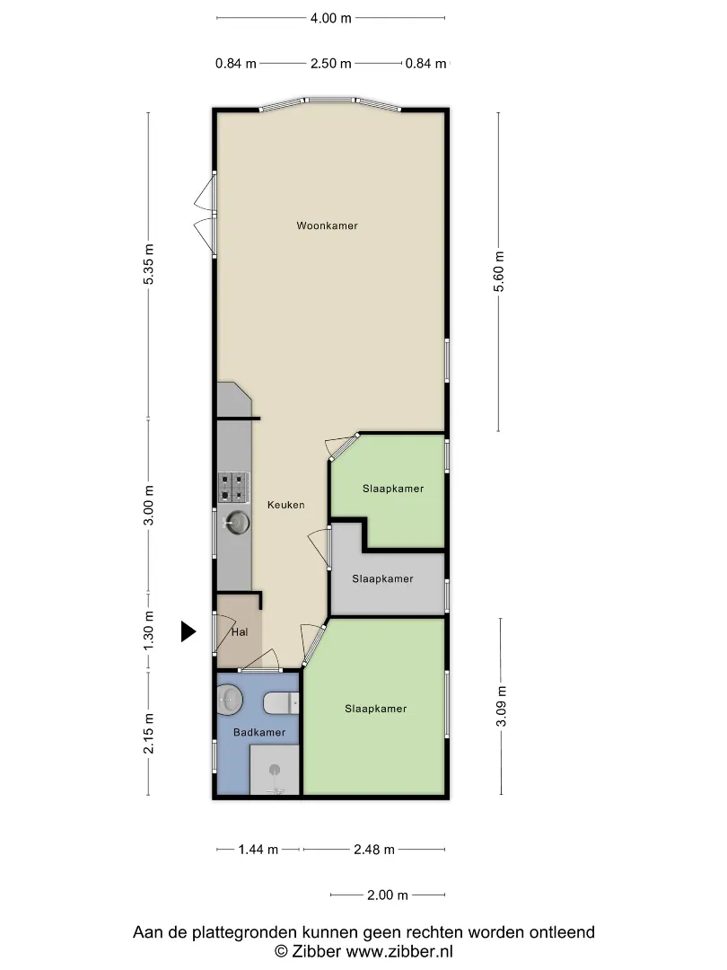
Entree met in de kast de geiser. Toegang tot open keuken. De keuken is compleet ingericht met inbouwapparatuur te weten: 4-pits gaskookplaat, koel/vriescombinatie, en afzuigkap. Gezellige woonkamer voorzien van openslaande deuren naar het zonnig gelegen veranda.
Eenvoudige badkamer met toilet, douchecabine, wastafelmeubel en wasmachine.
3 slaapkamers waarvan 1 met schuifwandkast en 1 met vast stapelbed.

Tuin: heerlijk beschutte tuin in het groen, leuk aangelegd en onderhouden met overdekt terras en houten tuinhuisje.

Algemeen:
Parkkosten per jaar € 8.012,-/2026 incl. huisdier/voorschot stroom+gas, toeristenbelasting, wifi, familietoeslag;
Max. 2 huisdieren toegestaan. Vraag naar de reglementen van park RCN de Schotsman/Recron.
Warmtevoorziening middels gasverwarming. Warmwatervoorziening middels geiser.
Uitsluitend recreatieve bewoning toegestaan (verhuur niet toegestaan);

Perc. opp: ca. 210 m2 (huurgrond), oplevering in overleg.





Perceelopp.
210 m²
Woonopp.
48 m²
Slaapkamers
3
Tuin
Ja

Algemeen

Adres:Schotsmanweg 1/20
Kamperland
Vraagprijs:€ 39.500 k.k.
Type:Stacaravan
Beschikbaar vanaf:In overleg
Ligging:Landelijk, Haven, Aan park, Buiten bebouwde kom, Kust, Beschutte ligging, Gemeente, Bosrijke omgeving
Perceeloppervlakte:210 m²
Totale woonoppervlakte:48 m²
Type constructie:Andere
Bouwjaar:2002
Externe Bergruimte :6 m²
Algemene staat:Eenvoudig

Indeling

Kamers:4
Slaapkamers:3
Badkamers:1
WC:1
Woonkamer:Ja, Woonkamer
Keuken:Ja, Open keuken, Ingericht met inbouwapparatuur
Tuin:Ja
Tuin oriëntatie:Zuid-West
Tuin kwaliteit:Normaal
Parking:Ja
Parking Types:Gratis

Comfort

Comfort:Fitnessruimte, Tuin, Park, Animatie, Digitale tv
Veiligheid:Toegangscontrole
Gemeubileerd:Ja
Snelweg:Ja - op 5000 m of meer
Treinstation:Ja - op 5000 m of meer
Bushalte:Ja - op 500 m tot 1000 m
Winkel:Ja - op minder dan 500 m
Ontspanning:Ja - op minder dan 500 m
Restaurant:Ja - op minder dan 500 m
Internet:Ja
Zonnewering:Ja
Zwembad:Ja

Wettelijke gegevens

Kad. gemeente:WISSENKERKE
Oppervlakte:210 m²
Certificaat Nr.:NVT

Plattegrond

Plattegrond 1
Kamperland
Schotsmanweg 1 20

€ 39.500 k.k.


U moet akkoord gaan met het privacybeleid van deze website
* Verplicht in te vullen
Kamperland
Schotsmanweg 1 20

€ 39.500 k.k.

Kamperland
Schotsmanweg 1 20

€ 39.500 k.k.